MENU
JP CN

新着情報NEWS

ホーム新着情報
2026/04/19
現場工事

阿倍野現場工事

【大阪市阿倍野区阪南町1-46-19】
丁寧な設計と施工を重ね、本改造工事は無事に完了いたしました。空間全体を見直し、機能性とデザイン性のバランスを整えることで、建物に新たな価値を生み出しました。以下、完成後の様子をご紹介いたします。


1.png



原始図

1.png

2.png



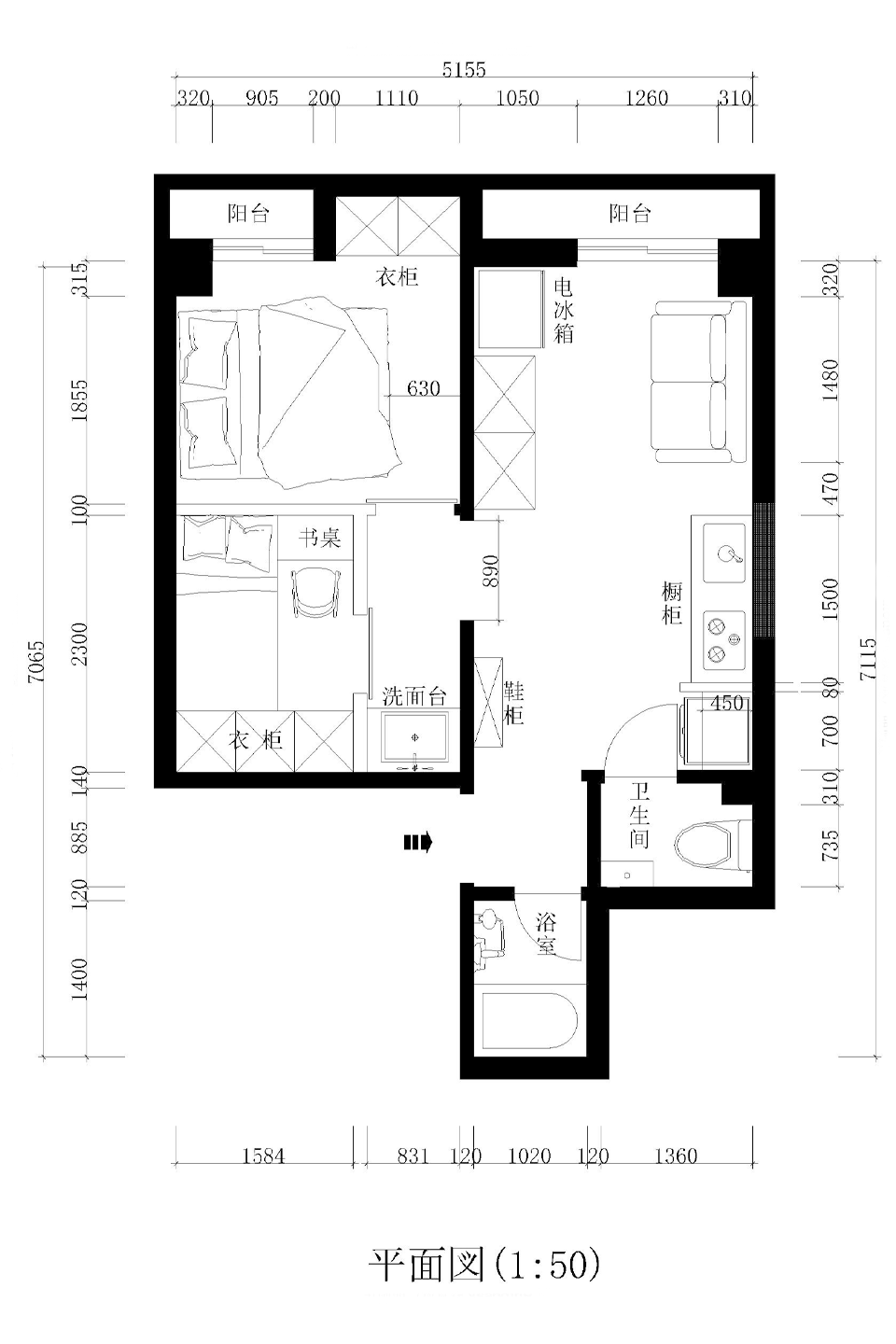
改造現場図

1.png

2.png

3.png

4.png



改造完成図

1.png

22.png

4.png


CONTACT

下記の電話番号
またはお問い合わせフォームよりご連絡ください。

電話番号
お問い合わせフォーム